关闭

热烈祝贺青岛百草中央实验室落成

       为了提高研发和检测能力,保障新品研发的顺利进行以及批量生产产品质量的稳定性,

经过6个月的积极筹划和准备工作,近日,青岛百草中央实验室正式落成。


图片

       

       实验室位于青岛市李沧区合川路17号,面积1500余平方米,配置设备、试验器材100

余台套,设有4个实验室、3个样品室、2个中试车间、1个展示区等区域;由生物学和材料

学两位博士带队解决纤维、塑料母粒、功能剂从理论到实践应用的问题。


图片

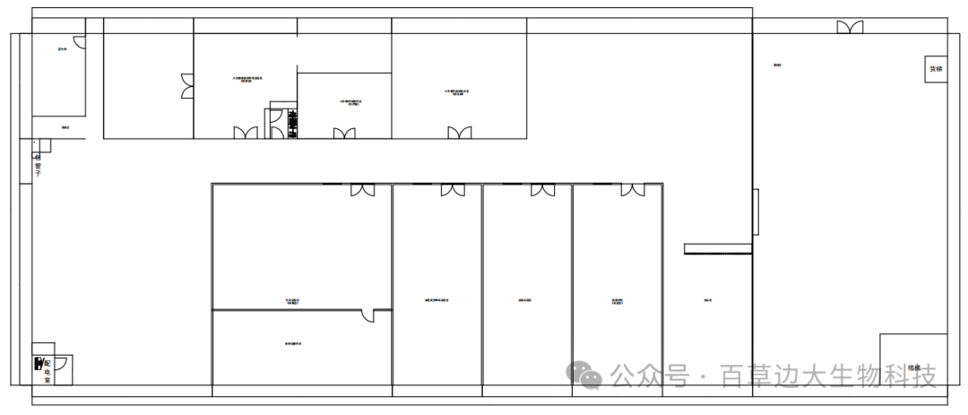
                                                中央实验室布局图

                   

                              图片中央实验室部分检测仪器设备展示图片


1.生化培养箱

图片

2.高速冷冻离心机

图片

     

       另外还有超临界CO2萃取仪、研磨机-纳米级、称重磁力搅拌器、旋转蒸发仪等诸多检

测仪器,确保所有产品在批量生产前全部经过可靠性试验验证。

      对品质的坚持就是对客户最大的尊重。青岛百草各类先进的检测设备充分改善了产品

研发、质量控制的硬件手段,从而保证产品质量持续稳定的提高。


       青岛百草边,一家专注于功能性大生物材料研发的企业,创造性地研发出具有植物各

种功效和特有各种生物属性的纤维、塑料母粒、生物功能助剂等,使之具备抗菌、抗病毒、

防霉、除异味等功效,适用于纺织,建材、塑料、皮革、涂料等行业。

       引领了人类的健康生活和纺织、皮革、建材、塑料行业的绿色革命,为世界首创,填

补了全球生物健康材料领域的空白。

       大生物材料新产品蕴含生物活性成分,把自然界生物活性分子移到材料中,实现自然

大挪移,把自然搬到身边,让人类能够在高楼汽车的物质文明中回归自然,享受自然,用

生物能量保护人类,同时贯彻了绿色健康的理念。



推荐新闻